30 Series - Metal Sand Media Filters - Aytok

Products

Application Areas

Filter Types

Corporate

Media Center

Search

search
trending_up Filter
trending_up Automatic Filter
trending_up Irrigation Systems

Filter Türleri

30 Series - Metal Sand Media Filters
30 Series - Metal Sand Media Filters
30 Series - Metal Sand Media Filters
Drip & Micro Irrigation Drip & Micro Irrigation
Sprinkler Irrigation Sprinkler Irrigation
Greenhouse Irrigation Greenhouse Irrigation
Wastewater Recycling Wastewater Recycling
Landscape Irrigation Landscape Irrigation
Drinking Water Pre-Filtration Drinking Water Pre-Filtration
Pivot Irrigation Pivot Irrigation
Process & Cooling Water Process & Cooling Water

Cleaning Process


The backwash process cleans the filter by reversing the water flow. Clean water from the rest of the system is directed into the filter’s outlet, while simultaneously, the inlet valve closes and the drain valve opens. The upward flow of water expands the sand bed, releasing trapped particles, which are then flushed out through the drain line. This procedure can be performed manually or set to occur automatically. An automatic system requires a minimum of two filters to ensure a continuous supply of clean water for the backwash cycle.

Working Principle


Sand filters work by passing contaminated water downward through a multi-layered bed of sand. As the water travels through the fine spaces within the sand media, physical and organic particles are captured and removed. At the bottom of the tank, a network of diffusers or mushrooms collects the purified water and sends it to the outlet, while securely holding the sand media in place. The type and layering of the sand can be specifically selected to match the water quality and achieve the desired filtration level.

Teknik Tablo Görseli

30 Series - Metal Sand Media Filters

local_offer 30

ADVANTAGES

Low Maintenance Low Maintenance
Economical Economical
Low Pressure Loss Low Pressure Loss
Durable Durable
Uninterrupted Uninterrupted
System Protection System Protection
Automation Ready Automation Ready

Mastering the Most Demanding Water.

Engineered with a specially coated steel vessel for superior corrosion resistance, our Metal Media Filter provides the ultimate foundation for deep-bed filtration. Tailor your solution with a precise combination of media (sand, basalt, anthracite, etc.) to capture stubborn algae, organic matter, and fine particulates. Fully configurable for either straightforward manual control or intelligent automatic backwash, it adapts to your exact operational needs for uncompromising performance.

GENERAL FEATURES

Body Material S235JR
Maximum Operating Pressure 8 bar; 116 Psi
Maximum Operating Temperature 60 °C; 140F
Filtering Method Diffuser or Mushroom
Painting Method Electrostatic Powder Paint
Paint Coating Material Epoxy-Polyester

GENERAL FEATURES

Body Material S235JR
Maximum Operating Pressure 8 bar; 116 Psi
Maximum Operating Temperature 60 °C; 140F
Filtering Method Diffuser
Painting Method Electrostatic Powder Paint
Paint Coating Material Epoxy-Polyester
Teknik Çizim Görseli
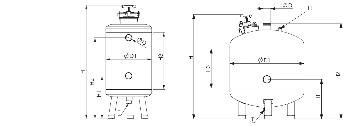
CODE D D1 T T1 H H1 H2 H3 Flow Rate  Weight
(kg)
Inch (mm) m³/h GPM(US)
3020 2 18 3/4 - 1250 400 900 700 15 66 52
3025 2 1/2 24 2 - 1450 560 1060 750 20 88 77
3030 3 24 2 - 1450 560 1060 750 24 105,6 82
3040 4 24 2 - 1700 560 1260 1000 28 123,2 94
3050 3 32 2 1 1195 420 1100 540 45 198 115
3060 3 36 2 1 1195 420 1100 500 50 220 132
3070 4 36 2 1 1195 420 1100 500 55 242 140
3080 4 48 2 1 1185 520 1100 500 80 352 250

 

CODE D D1 D2 T1 H H1 H2 H3 Flow Rate  Weight
(kg)
Inch mm m³/h GPM(US)
3090 4 36 3 - 1800 410 1250 1200 70-90 308-396 285
3090B 4 36 3 1 2120 410 410 1200 70-90 308-396 320
3090S 4 36 3 1 2780 410 410 1200 70-90 308-396 340
3090SM 4 36 3 1 3000 410 410 1200 70-90 308-396 360

 

Filter Code Sand Capacity for Mushroom (kg) Sand Capacity for Diffuser (kg)
3020 150 -------
3025 200 250
3030 200 250
3040 200 250
3050 300 350
3060 350 400
3070 350 400
3080 400 500
3090 - 800

Send us a message

Fill out the form below to contact us.

Ürün Detayı

30 Series - Metal Sand Media Filters
30 Series - Metal Sand Media Filters
30 Series - Metal Sand Media Filters

30 Series - Metal Sand Media Filters

local_offer 30
Drip & Micro Irrigation Drip & Micro Irrigation
Sprinkler Irrigation Sprinkler Irrigation
Greenhouse Irrigation Greenhouse Irrigation
Wastewater Recycling Wastewater Recycling
Landscape Irrigation Landscape Irrigation
Drinking Water Pre-Filtration Drinking Water Pre-Filtration
Pivot Irrigation Pivot Irrigation
Process & Cooling Water Process & Cooling Water

GENERAL FEATURES

Body Material S235JR
Maximum Operating Pressure 8 bar; 116 Psi
Maximum Operating Temperature 60 °C; 140F
Filtering Method Diffuser or Mushroom
Painting Method Electrostatic Powder Paint
Paint Coating Material Epoxy-Polyester

GENERAL FEATURES

Body Material S235JR
Maximum Operating Pressure 8 bar; 116 Psi
Maximum Operating Temperature 60 °C; 140F
Filtering Method Diffuser
Painting Method Electrostatic Powder Paint
Paint Coating Material Epoxy-Polyester

Cleaning Process

The backwash process cleans the filter by reversing the water flow. Clean water from the rest of the system is directed into the filter’s outlet, while simultaneously, the inlet valve closes and the drain valve opens. The upward flow of water expands the sand bed, releasing trapped particles, which are then flushed out through the drain line. This procedure can be performed manually or set to occur automatically. An automatic system requires a minimum of two filters to ensure a continuous supply of clean water for the backwash cycle.

Working Principle

Sand filters work by passing contaminated water downward through a multi-layered bed of sand. As the water travels through the fine spaces within the sand media, physical and organic particles are captured and removed. At the bottom of the tank, a network of diffusers or mushrooms collects the purified water and sends it to the outlet, while securely holding the sand media in place. The type and layering of the sand can be specifically selected to match the water quality and achieve the desired filtration level.

ADVANTAGES

Low Maintenance Low Maintenance
Economical Economical
Low Pressure Loss Low Pressure Loss
Durable Durable
Uninterrupted Uninterrupted
System Protection System Protection
Automation Ready Automation Ready

Powerful Filtration, Smarter Design.

Mastering the Most Demanding Water.

Engineered with a specially coated steel vessel for superior corrosion resistance, our Metal Media Filter provides the ultimate foundation for deep-bed filtration. Tailor your solution with a precise combination of media (sand, basalt, anthracite, etc.) to capture stubborn algae, organic matter, and fine particulates. Fully configurable for either straightforward manual control or intelligent automatic backwash, it adapts to your exact operational needs for uncompromising performance.

DÖKÜMANLAR

Teknik Çizim Görseli
Teknik Tablo Görseli
CODE D D1 T T1 H H1 H2 H3 Flow Rate  Weight
(kg)
Inch (mm) m³/h GPM(US)
3020 2 18 3/4 - 1250 400 900 700 15 66 52
3025 2 1/2 24 2 - 1450 560 1060 750 20 88 77
3030 3 24 2 - 1450 560 1060 750 24 105,6 82
3040 4 24 2 - 1700 560 1260 1000 28 123,2 94
3050 3 32 2 1 1195 420 1100 540 45 198 115
3060 3 36 2 1 1195 420 1100 500 50 220 132
3070 4 36 2 1 1195 420 1100 500 55 242 140
3080 4 48 2 1 1185 520 1100 500 80 352 250

 

CODE D D1 D2 T1 H H1 H2 H3 Flow Rate  Weight
(kg)
Inch mm m³/h GPM(US)
3090 4 36 3 - 1800 410 1250 1200 70-90 308-396 285
3090B 4 36 3 1 2120 410 410 1200 70-90 308-396 320
3090S 4 36 3 1 2780 410 410 1200 70-90 308-396 340
3090SM 4 36 3 1 3000 410 410 1200 70-90 308-396 360

 

Filter Code Sand Capacity for Mushroom (kg) Sand Capacity for Diffuser (kg)
3020 150 -------
3025 200 250
3030 200 250
3040 200 250
3050 300 350
3060 350 400
3070 350 400
3080 400 500
3090 - 800

Send us a message

Future with our technology
we shape!